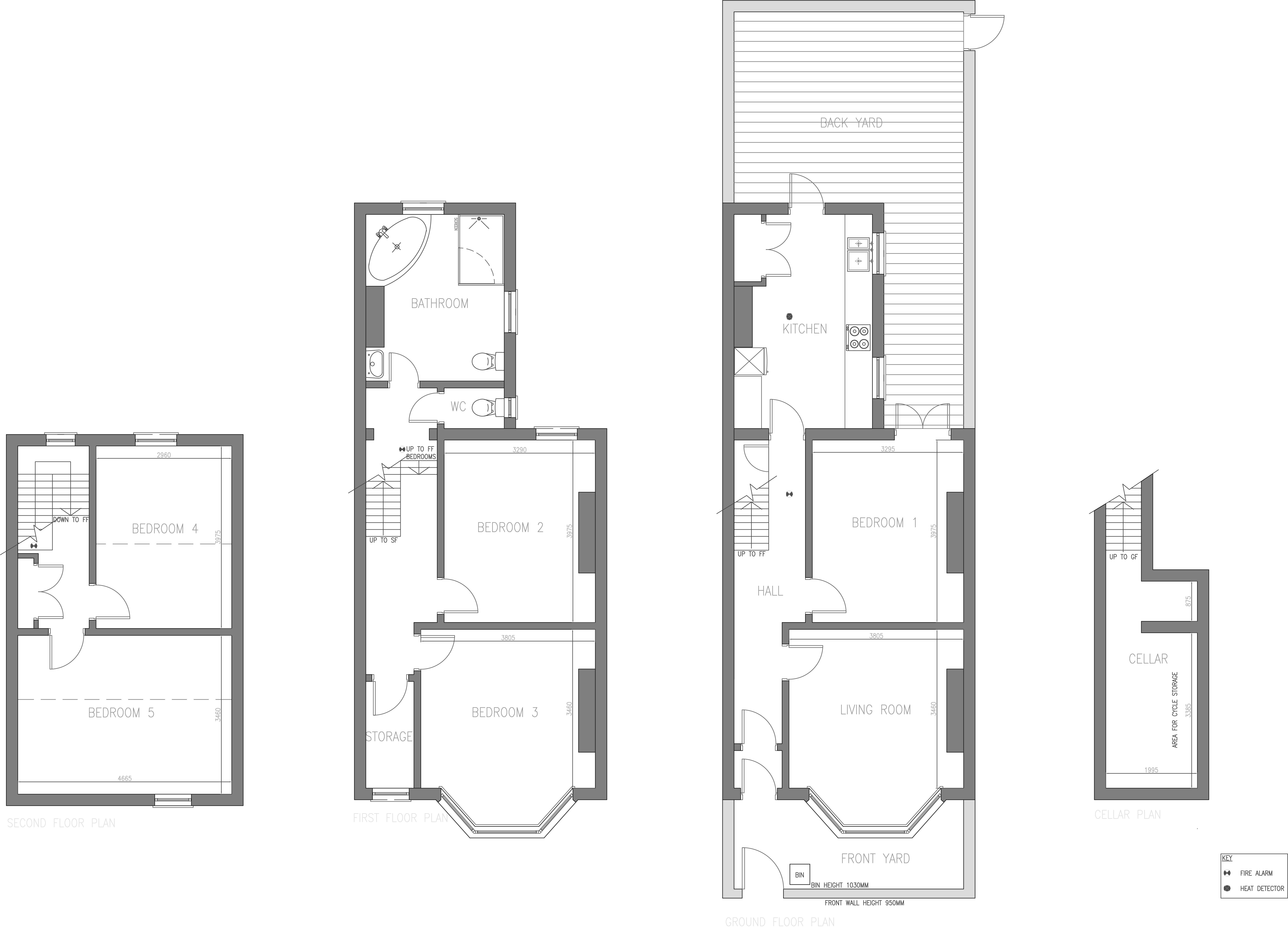
Project brief

Change of Use of planning consent for HMO obtained for terraced
Victorian House
HMO liscence applied for and granted.

Our role was to survey the property, create the existing
& proposed drawings for the project,
write planning stateents and gain planning approval for the works.